ID CP3039305

Vanzare Apartament 3 camere Zona Parcul Gradina Icoanei, Bucuresti

ID CP3039305

499,000 €

Apartament cu 3 camere de vânzare
Gradina Icoanei, Bucuresti
116.4 mp
1935

Agentia imobiliara City - Imob va prezinta spre achizitie un apartament de 3 camere amplasat la etajul 1 intr-un Bloc format din S + Demiscol + Parter + 2 etaje , construit in anul 1935 pe strada Polona Bucuresti.

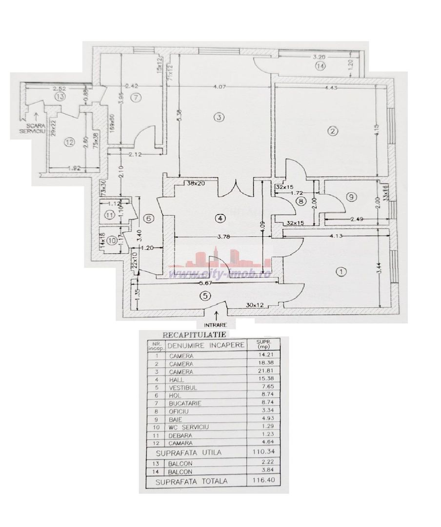
Apartamentul dispune de o suprafata generoasa si se desfasoara pe 116.40 mp utili dupa cum urmeaza:

- Hol generos la intrare de 7.65 mp din care se pot accesa independent 3 zone adica: 1 = zona de dining, 2 = zona de bucatarie si 3 unul dintre dormitoare sau birou.

- Dining in suprafata de 15.38 mp utili care este la randul lui foarte versatil permutand accesul catre 4 zone :

1 = zona de Living, 2 = zona de bucatarie, 3 unul dintre dormitoare sau birou., precum si dormitorul al doilea.

- Livingul de 21 . 80 care este amplasat ca o extensie in continuarea Diningului are acces direct catre bucatarie si catre un balcon de 3.84 mp utili.

- Dormitorul Mic in suprafata de 14.21 care comunica direct atat cu holul de intrare in apartament cat si cu diningul.

- Dormitorul Mare de 18.38 mp care are acces separat si la grupul sanitar de 4.93 mp

- Bucataria se desfasoara pe 8.74 mp si are acces direct si catre o debara de 4.68 mp dar si scara de serviciu ., precum si catre grupul sanitar secundar.

Imobilul este solid, nu este monument istoric, nu este incadrat in nici o clasa de risc seismic sau de urgenta, la interior necesita renovare totala, usi ferestre, instalatii sanitare, instalatie electrica, parchetul este din stejar masiv si se poate reconditiona.

Aceasta proprietate este ideala pentru persoanele care indragesc zona Parcului Icoanei, si pentru persoanele care apreziaza cladirile antebelice si care doresc sa-si lase amprenta restaurand valorile de patrimoniu readucand la viata istoria orasului Bucuresti.

Citește mai mult

  • Tip apartament
    Apartament
  • Compartimentare
    Decomandat
  • Număr camere
    3
  • Dormitoare
    2
  • Număr bucătării
    1
  • Număr băi
    1
  • Geam la baie
    Da
  • Etaj
    1
  • Suprafață utilă
    116.4 mp
  • Suprafață construită
    145 mp
  • Suprafață totală
    145 mp
  • Disponibilitate
    Imediat
  • Orientare
    Sud-Vest
  • Confort
    1
  • Stare interior
    Necesită renovare
  • Anul finisării
    1935
  • Număr balcoane
    2
  • Imobil
    Bloc de apart.
  • Stadiu construcție
    Finalizată
  • An construcție
    1935
  • Tip construcție
    Beton
  • Număr etaje clădire
    2
  • Număr subsoluri
    1
  • Are demisol
    Da

Facilități

Apă
Canalizare
CATV
Centrală imobil
Curent
Gaz
Iluminat stradal
Internet
Mijloace de transport în comun
Străzi asfaltate
Telefon
Ușă intrare metal
Uși interior lemn
IONESCU ADRIAN - CITY-IMOB
IONESCU ADRIAN
Manager

0799990888


Solicită chiar acum o vizionare
Telefon
Sună acum Solicită vizionare
Necesare:

Site-ul nu poate funcționa corect fără aceste cookie-uri. Vezi cookie-urile

Statistică:

Strângem statistici anonime despre voi, vizitatorii unici, pentru a vă îmbunătăți experiența dumneavoastră. Vezi cookie-urile

Marketing:

Pentru a ne promova mai eficient serviciile noastre, folosim cookies pentru a vă identifica și a vă oferi proprietăți și servicii personalizate. Vezi cookie-urile

Acest site folosește cookies, află detalii. Alege ce tipuri de cookies dorești să permitem: