ID CP2396947

Inchiriere Apartament Domenii, SANDU ALDEA Bucuresti Sector 1

ID CP2396947

850 €

Apartament cu 2 camere de închiriat
Domenii, Bucuresti
96 mp
1940

Agentia imobiliara City Imob va prezinta spre inchiriere un apartament spectaculos de doua camere (plus o camera separata la mansarda

Apartamentul este amplasat la etaju 1 din P+2 intr-o vila construita in anul 1940 in zona Domenii pe strada Constantin Sandu Aldea, Bucuresti, o strada selecta si linistita, paralela cu Strada Aviator Mircea Zorileanu si strada Alexandru Constantinescu.

Apartamentul este situat in vila cu gradina, la 5 minute pe jos de Piata Domenii si la 2 minute de jos de Agronomie.

Apartamentul este disponibil la inchiriere imediat si se preda noilor chiriasi exact cum este prezentat in fotografiile din prezentare.

Apartamentul se desfasoara pe 95.6 mp este format dupa cum urmeaza:

- un living de 20 mp utili,

- un dormitor de 19 .1 mp utili,

- o Bucatarie de 11.20 mp utili,

- un Grup Sanitar, de 5.90 mp utili, dotat cu cada.

- Un Balcon Inchis de 8.70 mp utili, care a fost si poate fi folosit pentru activitatea de birou,

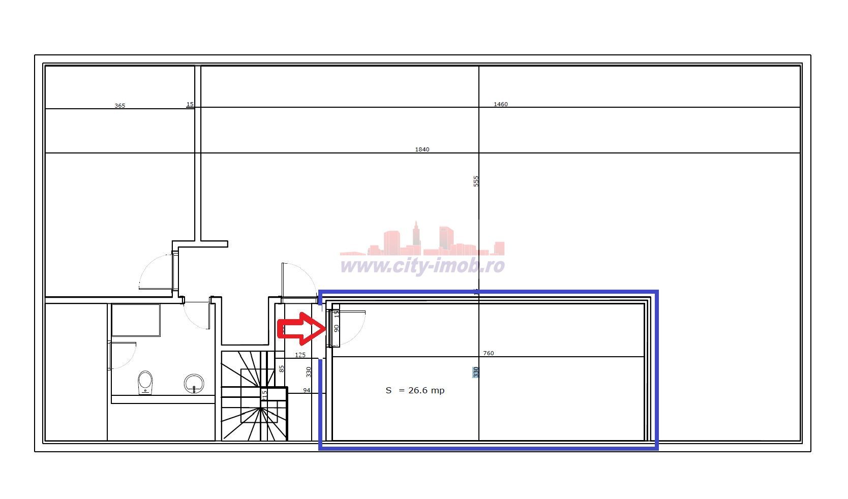
- O camera la Mansarda in suprafata de 26.6 mp utili. Camera de la mansarda este ideala pentru amenajarea unui spatiu de lucru dedicat (pentru adeptii ""work from home"" sau sala de gimnastica, sala de forta ori sala de meditatie.

Mentiuni: Camera de la mansarda este renovata integral in anul 2025 este dotata cu aparat de Aer conditionat, instalatie electrica noua, contor de energie electrica pasant instalat, tavan izolat cu vata bazaltica, doua ferestre mari de tip velux , usa de acces noua cu inchidere securizata multipunct).

Bucataria este dotata cu Aragaz , Cuptor, Frigider si mobilierul specific din dotare.

Grupul sanitar este dotat cu cada si echipamente sanitare instalate perfect functionale si igienizate.

Atuul acestei proprietati este curtea privata foarte generoasa din spatele imobilului care este comuna si folosita ocazional doar de catre cei 3 propriatari ai intregului imobil. (O adevarata bijuterie peisagistica, realmente o oaza de verdeata si liniste)

Sistemul de incalzire este provizionat de o centrala individuala pe gaze.

Sistemul de racire este provizionat de 2 unitati de aer conditionat amplasate una in livingul si una dormitorul principal.

Imobilul este amplasat la 16 minute mers pe jos de statia de Metrou 1 Mai (fosta Chibrit), respectiv 1.2 km distanta

si 2 minute mers pe jos de Bulevardul Mihalache unde avem mijloace de transport in comun de tip Tramvai si Trileibuz.

Imobilul este izolat termic la exterior iar ferestrele sunt de tip termopan.

Apartamentul este actualmente inchiriat dar va fi disponibil la inchiriere incepand cu 01 februarie 2026

Pretul solicitat de proprietar este 850 euro respectiv 700 euro pentru apartment si 150 euro pentru camera de la mansarda.

Daca se doreste exista si posibilitate de parcare supraterana pentru un autovehicul . (actualmente fara un cost suplimentar)

Pentru detalii si vizionari nu ezitau sa contactati brokerul imobiliar:

Ionescu Adrian,

07 99 _990_888

adrian @ city - imob . ro

Citește mai mult

  • Tip apartament
    Apartament
  • Compartimentare
    Decomandat
  • Număr camere
    2
  • Dormitoare
    1
  • Număr bucătării
    1
  • Număr băi
    1
  • Geam la baie
    Da
  • Etaj
    1
  • Suprafață utilă
    96 mp
  • Suprafață construită
    109 mp
  • Suprafață totală
    109 mp
  • Disponibilitate
    Imediat
  • Orientare
    Sud-Est
  • Confort
    1
  • Stare interior
    Ultrafinisat
  • Număr balcoane
    1
  • Număr terase
    1
  • Imobil
    Casă / Vilă
  • Stadiu construcție
    Finisat
  • An construcție
    1940
  • Tip construcție
    Beton
  • Număr etaje clădire
    2
  • Are mansardă
    Da

Facilități

Aer condiționat
Apă
Apometre
Cadă
Calorifere
Canalizare
Contor electric
Contor gaz
Frigider
Gaz
Hotă
Interfon
Internet
Izolație exterioară
Mașină de spălat rufe
Mașină de spălat vase
Mijloace de transport în comun
Parcare deschisă
Parchet
Străzi asfaltate
Ușă intrare metal
Uși interior celulare
IONESCU ADRIAN - CITY-IMOB
IONESCU ADRIAN
Manager

0799990888


Solicită chiar acum o vizionare
Telefon
Sună acum Solicită vizionare
Necesare:

Site-ul nu poate funcționa corect fără aceste cookie-uri. Vezi cookie-urile

Statistică:

Strângem statistici anonime despre voi, vizitatorii unici, pentru a vă îmbunătăți experiența dumneavoastră. Vezi cookie-urile

Marketing:

Pentru a ne promova mai eficient serviciile noastre, folosim cookies pentru a vă identifica și a vă oferi proprietăți și servicii personalizate. Vezi cookie-urile

Acest site folosește cookies, află detalii. Alege ce tipuri de cookies dorești să permitem: