ID CP2397420

Vanzare 2 apartamente in VILA Drumul Sarii P + 2

Această proprietate nu mai este activă,
te invităm să vizualizezi proprietăți similare

ID CP2397420

560,000 €

Casă / Vilă cu 10 camere de vânzare
Drumul Sarii, Bucuresti
250 mp
1994

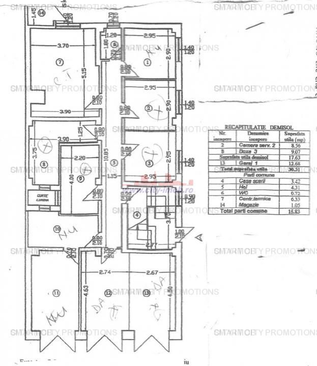
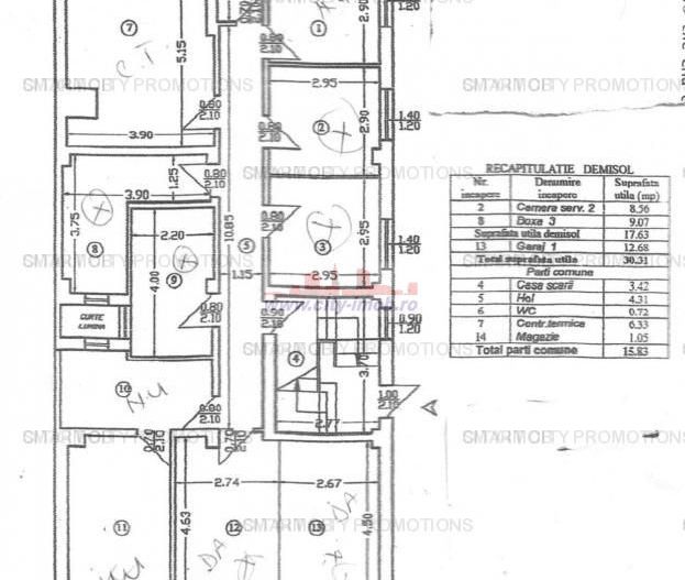
City IMOB (www.city-imob.ro) propune spre achizitie doua apartmente de 5 camere unul la parter si al doilea la etajul 1 intr-un imobil format din Demisol +Parter inalt si 2 etaje.

Ambele amapratmente identice sunt confort 1 si sunt amplasate intr-o vila pozitionata pe o strada adiacenta Drumul Sarii.

Vila este construita pe un teren in suprafata de 360 mp.

Amprenta cladirii este de 200 mp.

Imobilul este format din Demisol + Parter Inalt + Etajul 1 si Etajul 2.

Mentiuni:

Etajul 2 nu face obiectul acestui anunt deoarece este deja vandut.

Mobila de colectie din fotografii nu este de vanzare, proprietatea se vinde nemobilta, doar bucatariile sunt incluse complet mobilate si utilate.

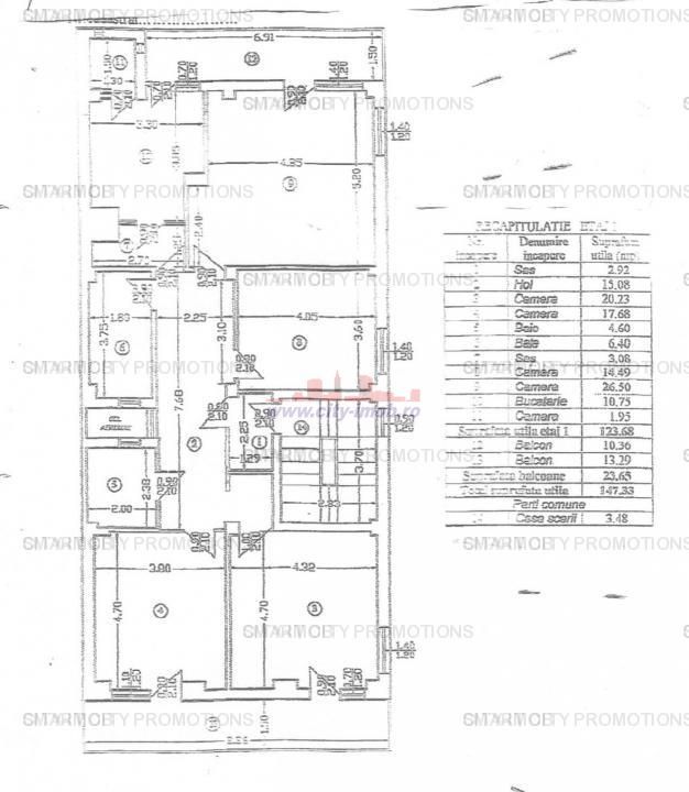
Proprietatea de vanzare este formata din 2 apartamente identice ulul pozitionat la Parterul imobilului si al doilea apartaemnt pozitionat la etajul 1 al imobilului ) adica cate 1 apartament pe etaj fiecare insumand fiecare o suprafata utila de 123.68 fara balcoane si 147.33 mp cu balcoanele incluse.

Fiecare apartament (atat cel de la parter cat si cel de la etajul 1 sunt compartimentate astfel:

- 1 LIVING de 26.50 mp utili

- 3 dormitoare: Dormitorul principal: 20.23 mp utili, Dormitorul secundar: 17.68 mp utili, dormitorul al treilea: 14.49 mp utlili

- 1 hol de acces de 15.08 mp

- 1 Bucatarie inchisa de 10.75 mp utili

- 1 Debara

+ 2 balcoane inchise cu termopan pozitionate pe cele doua capete ale vilei.

Proprietatea poate fi folosita si in regim mixt adica 1 etaj pentru rezidenta si 1 etaj punct de lucru firma sau birouri sau viceversa.

Proprietatea este deosebita iar comapartimentarea acesteia permite usor transformarea acesteia in Gradinita sau After school avand in vedere curtea si multiplele spatii de depozitare din dotare.

La Demisol exista doua locuri de parcare 2 boxe si 2 camere de serviciu care pot fi folosite pentru depozitare sau pot fi locuite fereastra are 60 cm peste sol.

In proprietate exista si o curte in spatele imobilului in suprafata de 90 mp unde se poate amenaja un fosior, gratar fix piscina, sau loc de joca pentru copii.

Zona este foarte linistita in imediata apropiere se regasesc gradinite particulare si after school, Liceul Teoretic "Ion Barbu".

Pentru informatii si vizionari nu ezitati sa ma contactati.

Citește mai mult

  • Număr camere
    10
  • Dormitoare
    6
  • Număr bucătării
    2
  • Număr băi
    4
  • Număr balcoane
    4
  • Număr locuri parcare
    2
  • Disponibilitate
    Imediat
  • Tip casă
    Individual
  • Stare interior
    Renovat
  • Suprafață utilă
    250 mp
  • Suprafață construită
    300 mp
  • Suprafață teren
    360 mp
  • Suprafață curte
    90 mp
  • Stadiu construcție
    Finisat
  • An construcție
    1994
  • Tip construcție
    Beton
  • Număr etaje clădire
    2
  • Are demisol
    Da
  • Cadastru
    Există
  • Intabulare
    Există

Facilități

Apă
Boxă la subsol
Calorifere
Canalizare
CATV
Centrală proprie
Curent
Debara
Ferestre aluminiu
Gaz
Internet
Izolație exterioară
Izolație interioară
Nemobilat
Parchet
Pivniță
Telefon
Uși interior lemn
Vopsea lavabilă
WC Serviciu
Necesare:

Site-ul nu poate funcționa corect fără aceste cookie-uri. Vezi cookie-urile

Statistică:

Strângem statistici anonime despre voi, vizitatorii unici, pentru a vă îmbunătăți experiența dumneavoastră. Vezi cookie-urile

Marketing:

Pentru a ne promova mai eficient serviciile noastre, folosim cookies pentru a vă identifica și a vă oferi proprietăți și servicii personalizate. Vezi cookie-urile

Acest site folosește cookies, află detalii. Alege ce tipuri de cookies dorești să permitem: